menu

Villa/feriebolig beliggende tæt på strand, jollehavn m.v.

I den nordlige del af Frederikshavn, ligger denne lækre helårsvilla/feriebolig som er opført i 2011 med et velindrettet boligareal på 108 m² + ca. 41 m² terrassearealer på 1. sal. hvoraf ca. 17 m² er overdækket.

Helårsvillaen/ferieboligen er beliggende tæt på Palmestranden, hvor man foruden den fine badestrand også kan gøre brug af beachvolley bane, håndboldbane, tangparasoller og solvogne. I samme pragtfulde område ligger Rønnerhavnen med bl.a., restaurant, jollehavn, samt ro- og kajakklub.

Nærmeste dagligvarebutik ligger i en afstand af kun ca. 700 meter og vil du spille golf finder du Frederikshavn Golfklub´s udfordrende 18 hullers bane kun ca. 2,5 km. væk.

Stueplan, som overalt er med gulvvarme, indeholder: Entré med klinkegulv og elegant trappe til 1. sal - 3 soveværelser, alle med skydedørs garderobe, klinkegulv og terrassedør - 2 badeværelser begge med bruseniche, væghængt toilet samt klinkegulv. På det ene badeværelse er der plads til vaskesøjle med vaskemaskine og tørretumbler. Samme flotte gulvklinke ligger i hele stueplan.

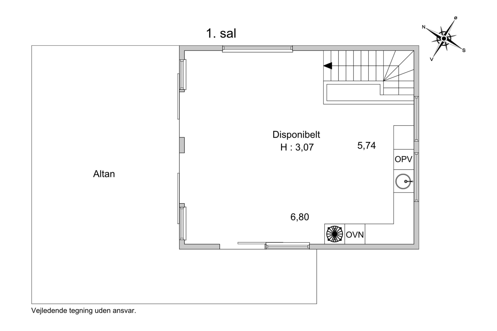
1. sal, som er med gulvvarme, indeholder: Stort lækkert og lyst rum på ca. 40 m² med ny gulvbelægning og som er indrettet med tidsløst Svane-køkken med hårde hvidevarer fra Siemens, spiseplads og opholdsstue. Fra de store gulv-til-loft vinduer strømmer lyset ind. Du får glæde af hele 3 skydedørspartier i glas, hvorfra der er udgang til det helt ekstraordinære store terrasseareal som delvis er overdækket og hvorfra havudsigten og udelivet kan nydes.

Der medfølger desuden et godt udhus/cykelskur som er påbygget på den østlige side af villaen og der er egen p-plads lige udenfor.

Villaens energimærke er kategori A2010 og der er etableret jordvarme og villaen opvarmes ved en varmepumpe efter luft/vand princippet.
Den beregnede årlige udgift til varme er, jf. energimærket, kun kr. 3.300,00 men det skal bemærkes at det kun er et skønnet beløb.

Brian Jensen
Kontakt:
Brian Jensen

Kærtoften 21, Frederikshavn
Sag: 010224-1

Kontantpris 1.550.000
Ejerudgifter pr. mdr1.147
Boligareal m2108
Bebygget areal m2 61
Grundareal m2 100
Etager2
Antal værelser3
Antal stuer1
Byggeår2011
Energiklasse

Standard finansiering
Brutto / Netto er ex. ejerudgifter8.223 / 6.604
Udbetaling80.000
Ejerudgifter pr. mdr1.147

Boligen er set gange4851

Vis salgsopstilling
/

Vis salgsopstilling


Når du bestiller salgsmateriale, godkender du at vi gemmer de indtastede personoplysninger og at vi må kontakte dig telefonisk eller via e-mail vedrørende ejendommen. Du kan se vores persondatapolitik her!

Navn:

Telefon:

E-mail:

 Jeg ønsker salgsopstillingen sendt via post

 Ja, Ejendomsmæglerfirmaet Calundan må kontakte mig via telefon eller mail vedr. denne og lignende boliger

Book fremvisning

Book en fremvisning

Kærtoften 21, Frederikshavn - 010224-1

Når du bestiller en fremvisning, godkender du at vi gemmer de indtastede personoplysninger og at vi må kontakte dig telefonisk eller via e-mail med henblik på fremvisning af ejendommen. Du kan se vores persondatapolitik her!

Dine oplysninger

Ønsket tidspunkt

Kontakt en af vores finansielle partnereFå en gratis salgsvurdering
boliger i samme prisniveau
Århusgade 29
Frederikshavn
Kontantpris1.495.000
Boligareal m279
Strandgade 14
Frederikshavn
Kontantpris1.950.000
Boligareal m2111
Slagelsegade 24
Frederikshavn
Kontantpris1.395.000
Boligareal m2121
Otto Ruds Vej 3
Frederikshavn
Kontantpris1.585.000
Boligareal m2160
Emilievej 21
Frederikshavn
Kontantpris1.745.000
Boligareal m2127
Istedvej 11
Frederikshavn
Kontantpris1.995.000
Boligareal m2158
Jacob Kjelds Vej 10
Frederikshavn
Kontantpris1.095.000
Boligareal m2123
Dybbølvej 17
Frederikshavn
Kontantpris1.995.000
Boligareal m2204
Tennisvej 39
Frederikshavn
Kontantpris1.995.000
Boligareal m2165
Strandgade 8
Frederikshavn
Kontantpris1.595.000
Boligareal m2139
Vigen 9
Frederikshavn
Kontantpris1.695.000
Boligareal m2161
H.C. Ørsteds Vej 31
Frederikshavn
Kontantpris1.595.000
Boligareal m2164