Villa beliggende kun 150 m. fra vandet og Neppens Havn i Bangsbostrand
Villaen på Vigen 9 i Frederikshavn er beliggende i det skønne Bangsbostrand, tæt på både vandet og den charmerende og hyggelige Neppens Havn. Her får I muligheden for at bo i et roligt og attraktivt område med kort afstand til både natur, skole og indkøb hvilket gør villaen ideel for både familier og naturelskere.
Fra ejendommen er der blot omkring 150 meter til Neppens Havn, hvor I kan nyde første parket til havet og de smukke solopgange. Havnen byder på tre bådebroer og et hyggeligt træterrasseareal med borde og bænke, som giver en særlig stemning. Om morgenen kan I opleve den imponerende udsigt, mens aftenerne byder på et betagende lysspil fra havnens aktiviteter og de mange skibe på horisonten. Her er der perfekte muligheder for en frisk dukkert året rundt.
Inden for en radius af cirka 1.000 meter finder I både skole, indkøbsmuligheder, daginstitution, isstadion, Bangsbo Skoven og offentlig transport. Derudover er Europavejen kun få minutters kørsel væk, hvilket gør det nemt at komme hurtigt til Aalborg på cirka 35 minutter.
Villaen er løbende vedligeholdt og moderniseret både ude og inde. I 2005 blev gavlene udskiftet til vedligeholdelsesfrie Hardyplanker ligesom gavlvinduerne blev udskiftet (kr. 113.000), i 2010 blev der i stueplan monteret træ/aluvinduer med energiglas (kr. 82.000), og i 2012 blev taget udskiftet til et flot listetækket paptag, der står i stilfuld kontrast til facaden og samtidig blev tagbelægningen og sternbrædder på garagen udskiftet (kr. 290.000). Badeværelset på første sal blev renoveret i 2017 og fremstår moderne og indbydende (kr. 167.000).
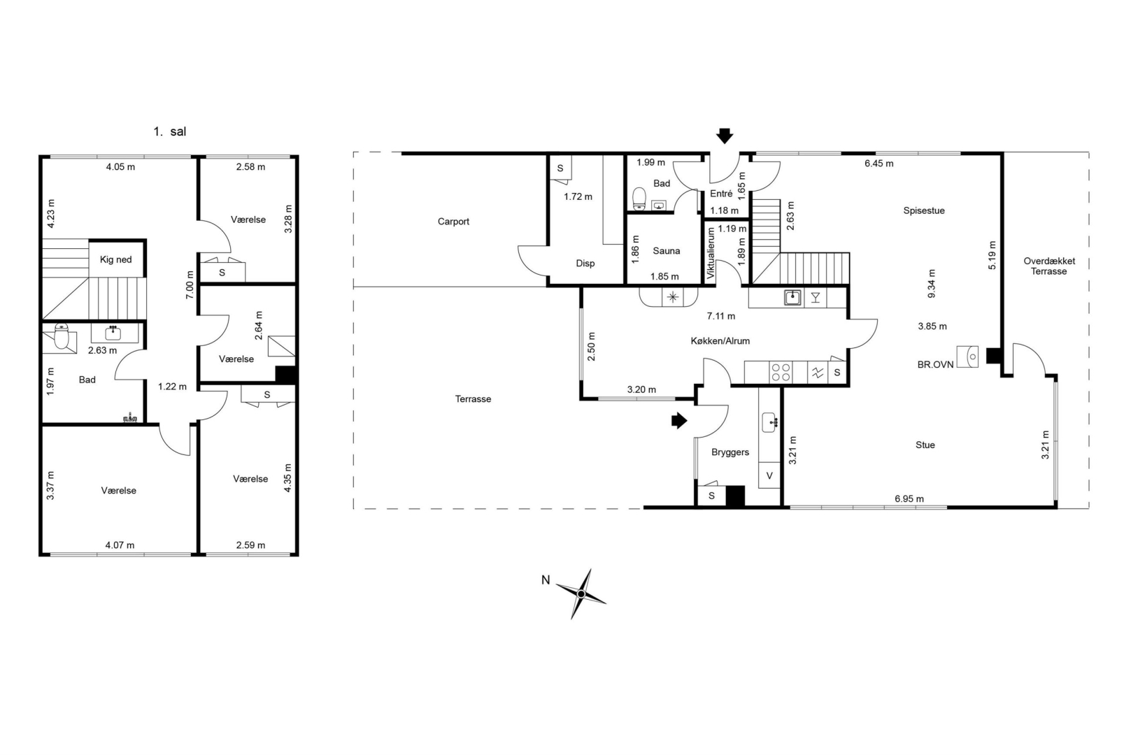
Indretningen byder i stueplan på et godt bryggers med vask og plads til vaskemaskine, et nydeligt og funktionelt køkken med rigelig spiseplads samt et praktisk viktualierum. Opholds- og spisestuen har et dejligt lysindfald fra de mange vinduespartier, og her finder I også en brændeovn (skal skiftes) samt udgang til en sydvendt, delvist overdækket og flisebelagt terrasse. Terrassen ligger ugeneret og giver mulighed for at nyde haven eller samle familie og venner til hyggelige grillmiddage. Fra spisestuen fører en brugervenlig trappe til overetagen.##Stueplan rummer desuden en entré samt et moderniseret gæstetoilet med direkte adgang til en stor sauna.
På første sal finder I en lys balkonstue, der kan bruges som arbejdsplads eller legerum, og fra det brede vinduesparti kan I nyde udsigten til vandet og de smukke solopgange. Der er to børneværelser med skabe og gavlvinduer, et soveværelse med indbyggede skabe, et kontor eller mindre værelse med tagvindue samt et stilfuldt badeværelse med klinkegulv, gulvvarme, bruseniche, håndklædetørrer, væghængt toilet og dagslysindfald. En fordelingsgang binder rummene sammen. Vinduespartier i galv mod vest er med solfilter.
Grunden på 680 m² er veludnyttet og rummer blandt andet flere terrasser, en dobbelt carport på 32 m², hvoraf 7 m² udgør et udhus, samt et overdækket areal velegnet til cykler. Derudover findes endnu et udhus på 17 m², som giver ekstra opbevaringsplads.
Nysgerrig efter at høre mere så kontakt os på tlf. 98434300.














































