Villa fra 2021 beliggende tæt på vand og strand
Velkommen til Strandhusevej 5, en smuk og harmonisk villa inspireret af de klassiske og eftertragtede Skagenshuse. Beliggende i naturskønne omgivelser mellem Frederikshavn og Sæby, og kun 5 minutters gang til en dejlig badestrand, finder I denne perle på en 3.646 m² stor grund.
Denne villa er opført med fokus på æstetik og kvalitet. Udvendigt præsenterer villaen sig med et rødt tegltag, og her er rygning, grater og de to yderste rækker tagsten forskellede udefra. Fem flotte zinkinddækkede kviste pryder taget, mens facaden er afsluttet med 220 mm udvendig isolering og puds. Vinduerne er de karakteristiske dannebrogsvinduer fra Rationel Vinduer i træ/alu med 3 lags energiglas, hvilket sikrer både æstetik og energieffektivitet.
Materialevalget indvendigt er nøje afstemt for at skabe en hyggelig og landlig atmosfære. Dette går igen i både køkken, bryggers og badeværelser. Gulvene er belagt med samme gennemgående klinkegulv og trægulv, hvilket giver en sammenhængende og harmonisk stil. Hele stueplan (undtagen garagen) er udstyret med gulvvarme for maksimal komfort. Villaen opvarmes effektivt med en luft-til-vand varmepumpe, hvilket sikrer lavere energiforbrug og miljøvenlig opvarmning.
Stueplan indeholder: Entré med klinkegulv - Rummelig fordelingsgang med klinkegulv og brugervenlig trappe til 1. sal - Lækkert badeværelse med klinkegulv, gulvvarme og bruseniche - Praktisk bryggers med bord med vask, plads til vaskemaskine og tørretumbler samt direkte udgang til den 35 m² store integrerede garage - Lækkert fransk landkøkken med mobil arbejdsø, i åben forbindelse med opholdsstuen. Opholdsstuen er udstyret med en effektiv brændeovn, synlige bjælker og loft til kip, hvilket skaber en fantastisk rumfølelse. Fra de to høje vestvendte gavlvinduer strømmer lyset ind, og de to terrassedøre giver adgang til en flisebelagt, privat terrasse.
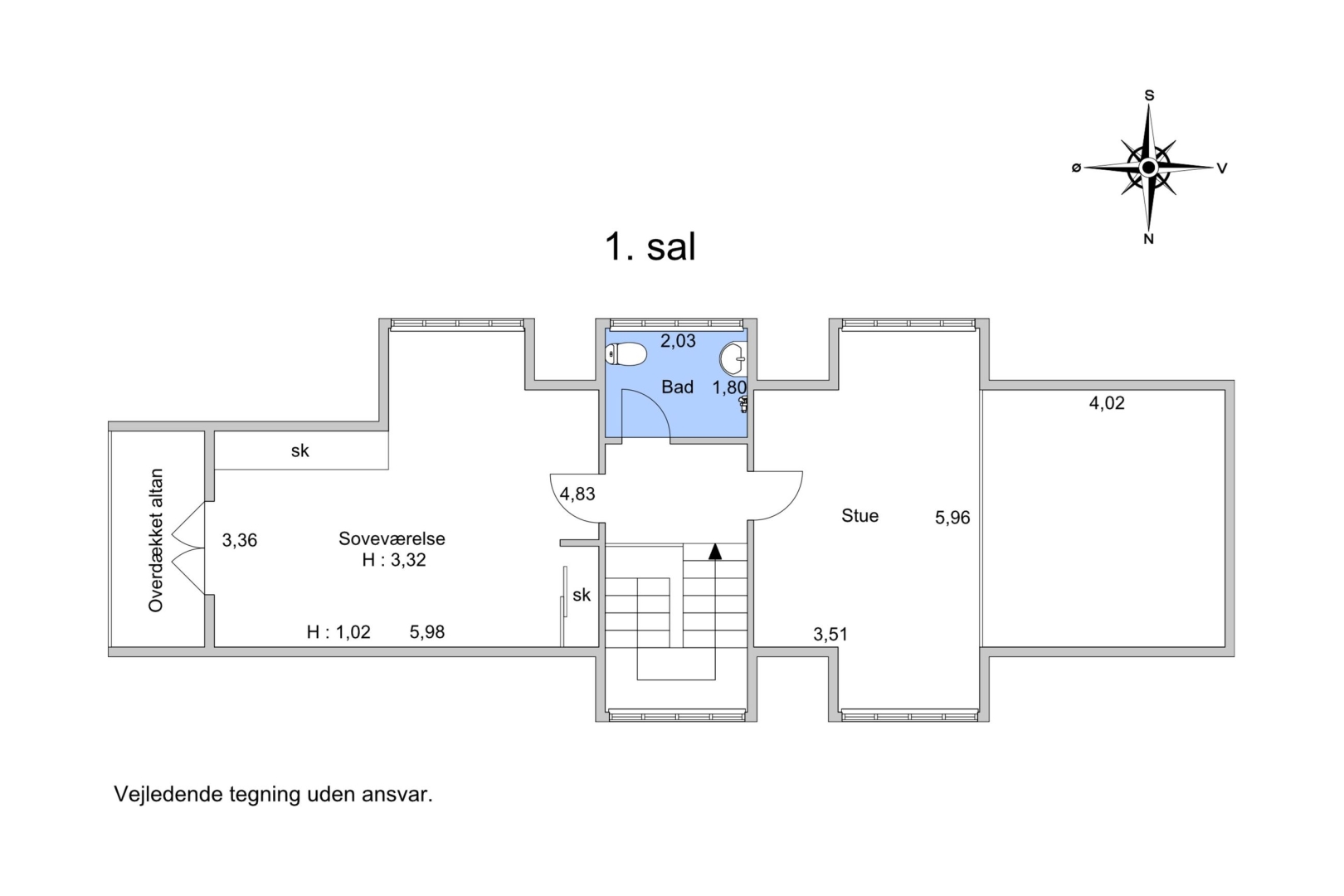
1. sal indeholder: Stort soveværelse med trægulv, skabe, kvist, loft til kip og udgang til overdækket altan - Flot badeværelse med klinkegulv og bruseniche - Stue/arbejdsværelse med et imponerende kig ned til opholdsstuen og ud gennem de store vinduespartier, der strækker sig fra gulv til kip.
Området hvori ejendommen er beliggende er noget helt særligt idet grunden og de umiddelbart omkringliggende arealer er omfattet af Overfredningsnævnets afgørelse af 7. februar 1964 om fredning af arealer ved Sulbæk.
Kontakt os for en fremvisning og oplev denne unikke ejendom med egne øjne.


































