Drømmen om fred, natur og nærhed til byen
Drømmer I om fred og ro, fuglekvidder, et rigt dyreliv og naturskønne omgivelser og samtidig at bo tæt på byen? Så kunne Bækmojenvej 25 meget vel være den perle, I leder efter. Her får I et boligareal ifølge BBR på 209 m² samt en rummelig grund på hele 5.462 m² med masser af luft omkring jer.
Ejendommen ligger kun cirka 3,5 km fra Frederikshavns bygrænse, hvor I finder alt til hverdagen indkøb, skole, daginstitutioner og fritidsaktiviteter. Kører man blot 4 km mod vest, når man den hyggelige landsby Ravnshøj, der byder på skole, SFO, børnehave, idrætshal, fodboldbaner og en moderne multibane. Her er et aktivt lokalsamfund og gode muligheder for både børn og voksne. Til både Frederikshavn og Ravnshøj fører der cykelsti hele vejen, hvilket gør det nemt og sikkert at komme frem og tilbage også for familiens yngste.
Boligen fremstår lys, indbydende og velholdt med flot korkvinylgulv fra Timberman i alle opholdsrum, hvilket giver en elegant og ensartet helhed. Taget er udskiftet på både boligen og sidebygningen, der rummer garage, teknikrum, entre (ikke boligareal) og bryggers (ikke boligareal). I forbindelse med tagudskiftningen blev der etableret undertag og efterisolering, så ejendommen fremstår i en energimæssig rigtig god stand.
Opvarmningen sker via et Vølund jordvarmeanlæg, og både vinduer og døre er udført med trelags energiruder fra Krone Vinduer. Ifølge sælger er gulvene isoleret med 300 mm polystyrenplader under betonen, og der er gulvvarme i hele stueetagen (inklusive garage og teknikrum) samt på hele førstesalen dog undtaget det disponible rum mod nord. Alt dette bidrager til et energimærke i kategori C, hvilket vidner om en bolig med god komfort og lavt energiforbrug.
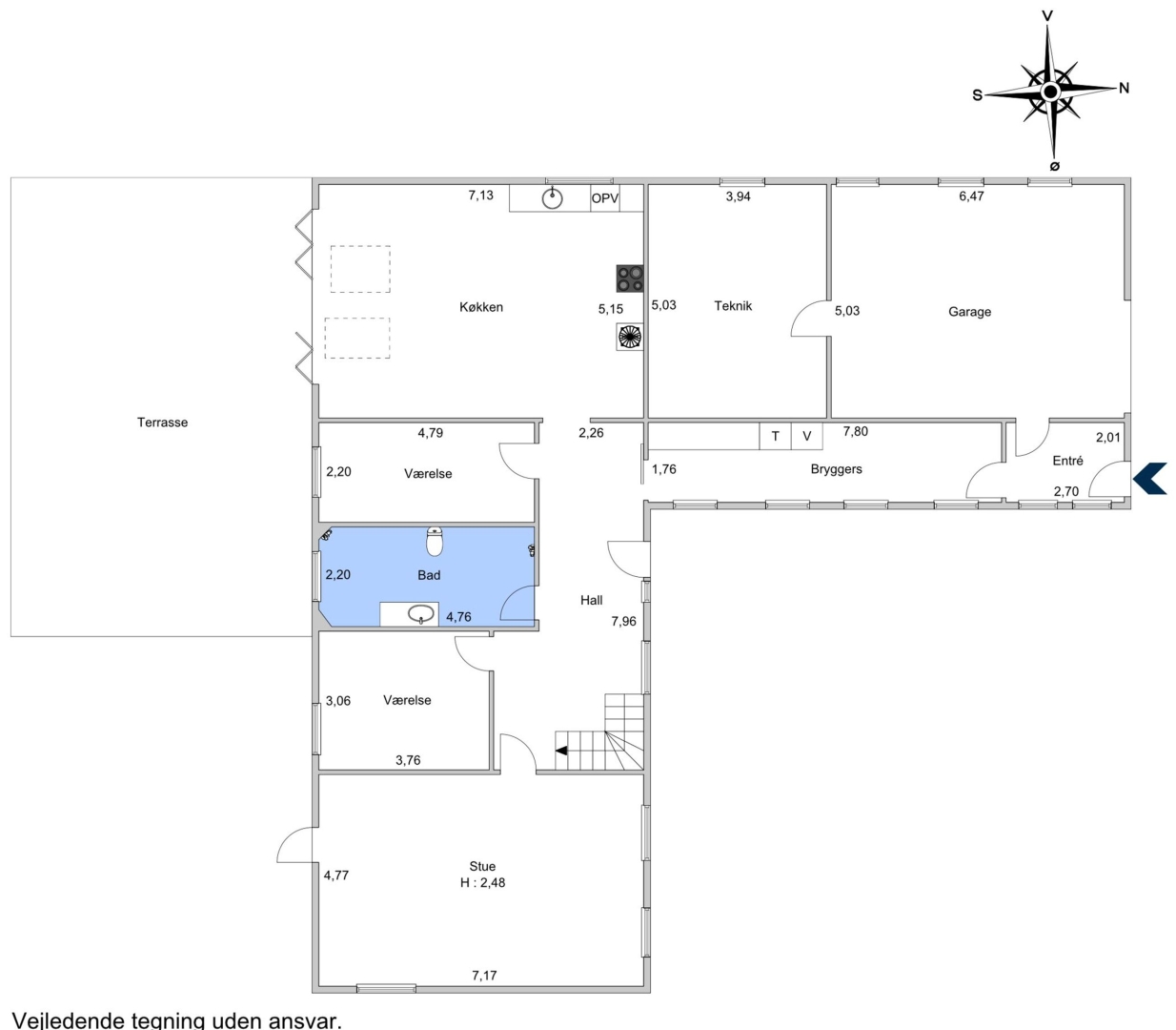
Når man træder ind i boligen, mødes man af en flot hall med elegant trappe og kig til førstesalen. Herfra er der adgang til et fantastisk køkken/alrum med synlige bjælker, loft til kip, stort foldbart terrassedørsparti mod syd, to ovenlysvinduer og direkte udgang til en stor flisebelagt terrasse. Det nuværende køkken er opsat som en midlertidig løsning, hvilket giver den kommende ejer mulighed for selv at vælge drømmekøkkenet og sætte sit eget præg. I stueplan finder man desuden et lækkert badeværelse med glasafskærmet bruseniche, væghængt toilet og stilrent vaskemøbel, en hyggelig opholdsstue med synlige bjælker og udgang til sydvendt terrasse, to gode værelser samt bryggers og entre med praktisk adgang til garagen.
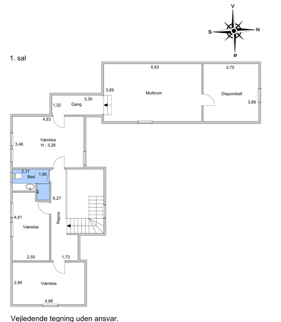
På førstesalen ligger et badeværelse med bruseniche, væghængt toilet og skråvindue, et stort soveværelse med loft til kip og to skråvinduer samt to gode værelser. Her er også et lyst repos med kig til hallen og loft til kip, et gangareal med kig til køkken/alrum samt et multirum med loft til kip, synlige hanebånd og skråvindue. Fra multirummet er der adgang til et disponibelt rum, som kan anvendes efter behov.
Den store grund på 5.462 m² byder på masser af muligheder for både leg, have og hobby. Her er god plads til udelivet eller blot at nyde de fredelige omgivelser.
Udover boligen og sidebygningen findes et par ældre, nedrivningsklare udhuse samt et større renoveringsmodent udhus på cirka 105 m², hvoraf en del udgør garageareal.
Ejendommen er tilsluttet fibernet, og hele belysningen både inde og ude er udført med Philips Hue, så lys og stemning nemt kan tilpasses efter behov.
Bækmojenvej 25 er et hjem med charme, ro og naturnær stemning og samtidig med kort afstand til byens bekvemmeligheder. Her får I det bedste fra to verdener: landlig idyl og moderne komfort i perfekt balance.



































