En fuldstændig indflytningsklar bolig i uovertruffen stand og med et etageareal på ialt 214 m²!
Denne smukke villa, opført i 1941, har gennemgået en omfattende renovering og fremstår i dag som en moderne og yderst velholdt bolig med en række opdaterede, energibesparende løsninger. Den nuværende ejer har gennem årene gennemført flere opgraderinger, som gør ejendommen til en perfekt kombination af klassisk charme og moderne komfort.
Renoveringshistorik, som kun en del af de renoveringer, sælger har udført fra 1997 og frem:
1997: Alt VVS og elinstallationer udskiftet. Ny kloak og hulmursisolering. Kælder istandsat med nyt isoleret gulv, og skillevægge er understøbte med isolering af Leca-beton. Gulvvarme i gangareal. Gulvvarme i badeværelse inkl. opvarmning af væg for håndklæder-tørre. Disponible rum i kælder etableret med redningsåbninger.
2003: Nyt tag på hele huset af betonsten med nye undertagsplader Tilbygning mod vest med gulvvarme og med kabelførte termostater. Etablering af højvandslukker i kælderskakt
2011-2013: Nyt cykelskur og terrasse af hårdttræ etableret på støbt pille-fundament. Solcelleanlæg på 6kW installeret (Pro model der er udført i 2 lag hærdet glas uden alu kant ramme). Luft til luft-varmepumpe inkl. kondenspumpe etableret for køling.
2020-2024: Opdatering af badeværelser. Nye laminatgulve med ekstra gummibelægning og industri belægning for ekstra holdbarhed etableret i tilbygning + gangareal + køkken. Facaderenovering + maling af huset med åndbar maling fra Jotun. Nye energi optimeret radiatorer etableret i stue + gang + soveværelse + loftrum. Installation af varmegenvindingsventilator i kælderens disponibelt rum for optimalt indeklima. Nye Troldtekt lofter etableret i gangarealer + toiletter + disponible rum i kælder. Nye LED spot i rum med nye Troldtekt lofter + køkken. Opdatering af eltavle med nye automatsikringer. Etablering af Danfoss elektroniske termostater med energibesparelse + App styret for alle rum
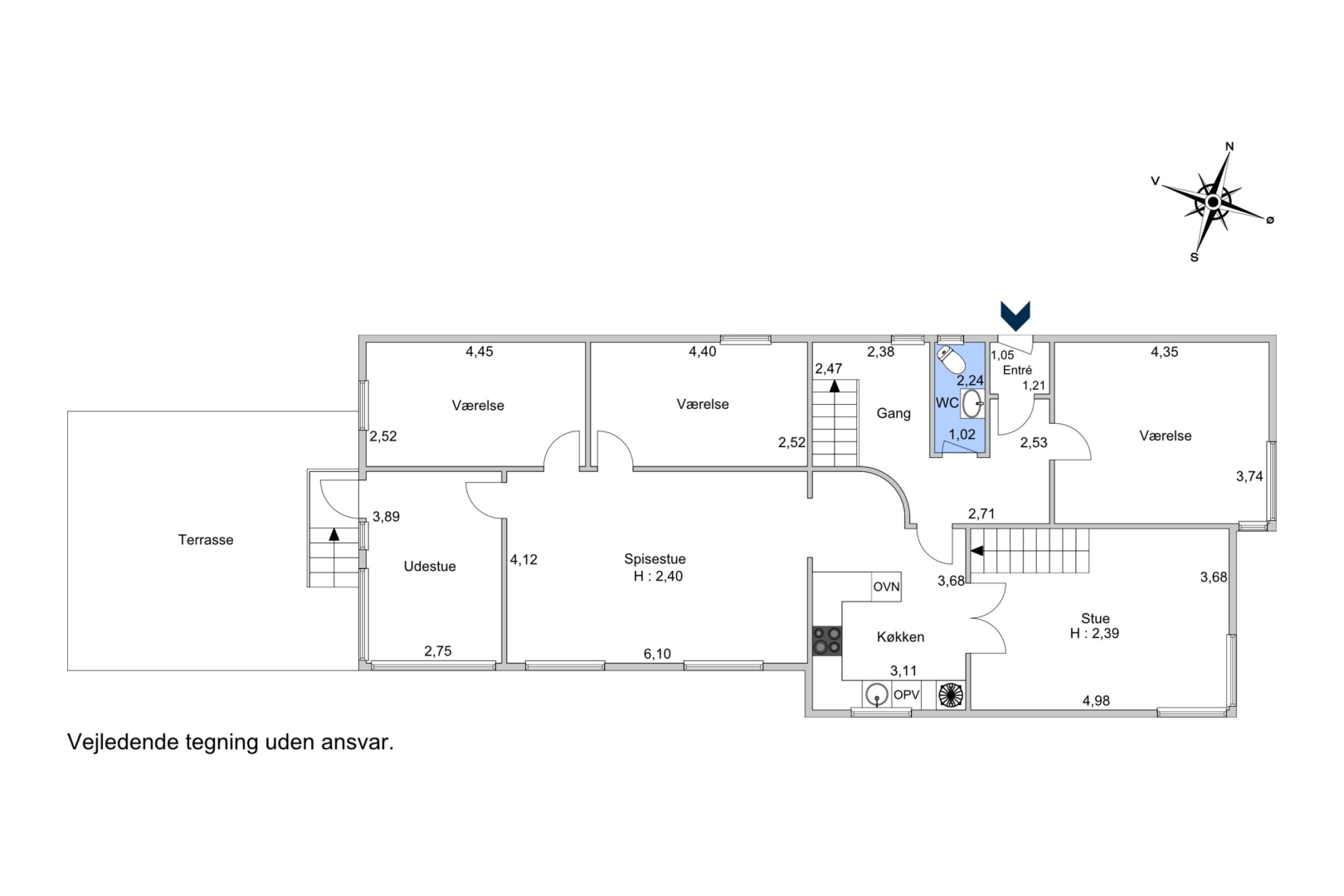
Stueplan: Entré med adgang til fordelingsgang, der fører til resten af huset - Køkken fra 1997 med kvalitetskøkkenelementer fra Svanekøkken. Opholdsstue med trappe til loftrum indrettet i boligstandard og med tagvindue og trægulv. Stort lækker alrum/spisestue med gulvvarme og direkte adgang til muret udestue samt videre udgang og nedgang til stor vestvendt hårdttræsterrasse. Stort soveværelse med trægulv. 2 store børneværelser med gulvvarme. Gæstetoilet med klinkegulv med gulvvarme.
Kælder: Højloftet kælder i en formidabel stand og med flere funktionelle rum: Badeværelse med gulvvarme, bruseniche og plads til vaskemaskine og tørretumbler. Disponibelt rum med micro cementgulv, Troldtekt-loft og rustik New Yorker-væg. Fordelingsgang med gulvvarme. Teknikrum. Sauna. Yderligere 2 disponible rum. Værksted/vinkælder med klinkegulv og udvendig indgang
Det disponible etageareal, inkl. et udnyttet loftsrum (ikke boligareal), andrager ca. 230 m², hvortil kommer et godt udhus på ca. 10 m² til opbevaring og plads til cykler
Boligen tilbyder høj komfort og moderne sikkerhedsløsninger:
Central støvsuger system etableret. Ny posefri støvsuger fra 2023. inkl. 3 x 9 mtr. slanger + 2 x fejebakker + udtag i udhus til rengøring af bil.
LK IHC lysstyringssystem med opdateret controller. IHC-styring med sensor i gangarealer+ udvendigt + påklædningsrum + køkken. IHC lysdæmpning i stue + spisestue + stort værelse i kælder. IHC styret stikkontakter i vindues lysninger spisestue. Komplet højsikkerheds alarmsystem kabelført med opkobling til kontrolcentral. Optiske røgdetektorer i alle rum med opkobling til kontrolcentral og akkumulator backup. Vandskadesensorer under opvasker + bag vaskemaskine + i teknik-rum + grundvandspumpe i værksted. Komplet kabelført udvendig + indvendig Full-HD kameraovervågning med App styring, i alt 9 kameraer. 4 stk. ADK standalone håndtag med pinkode på yderdøre + cykelskur. Bose PRO højtalersystem (3 i 1) indbygget i loft spisestue og retningsbestemte tilpasset lokalet. Netværkskabler fremført i huset. 4 stk. UniFi WIFI system med samme dækning i hele huset. LongRange
Denne villa er ideel til køberen, der søger en fuldstændig indflytningsklar og veldisponeret bolig i uovertruffen stand, med topmoderne komfort og sikkerhed og ikke mindst en god beliggenhed i et godt kvarter ikke langt fra centrum.
Kontakt os for yderligere oplysninger eller for at aftale en fremvisning af dette skønne hjem...



































