Villa på 191 m² + 90 m2 muret dobbelt garage i nyere villakvarter
Er I til nybyggeri, men ønsker at undgå den ofte lange, opslidende og til tider besværlige proces med byggetilladelser, materialevalg, risiko for budgetoverskridelser, indretningsbeslutninger og meget mere, får I her muligheden for at overtage en skøn, vinkelbygget villa fra 2023 helt uden ventetid.
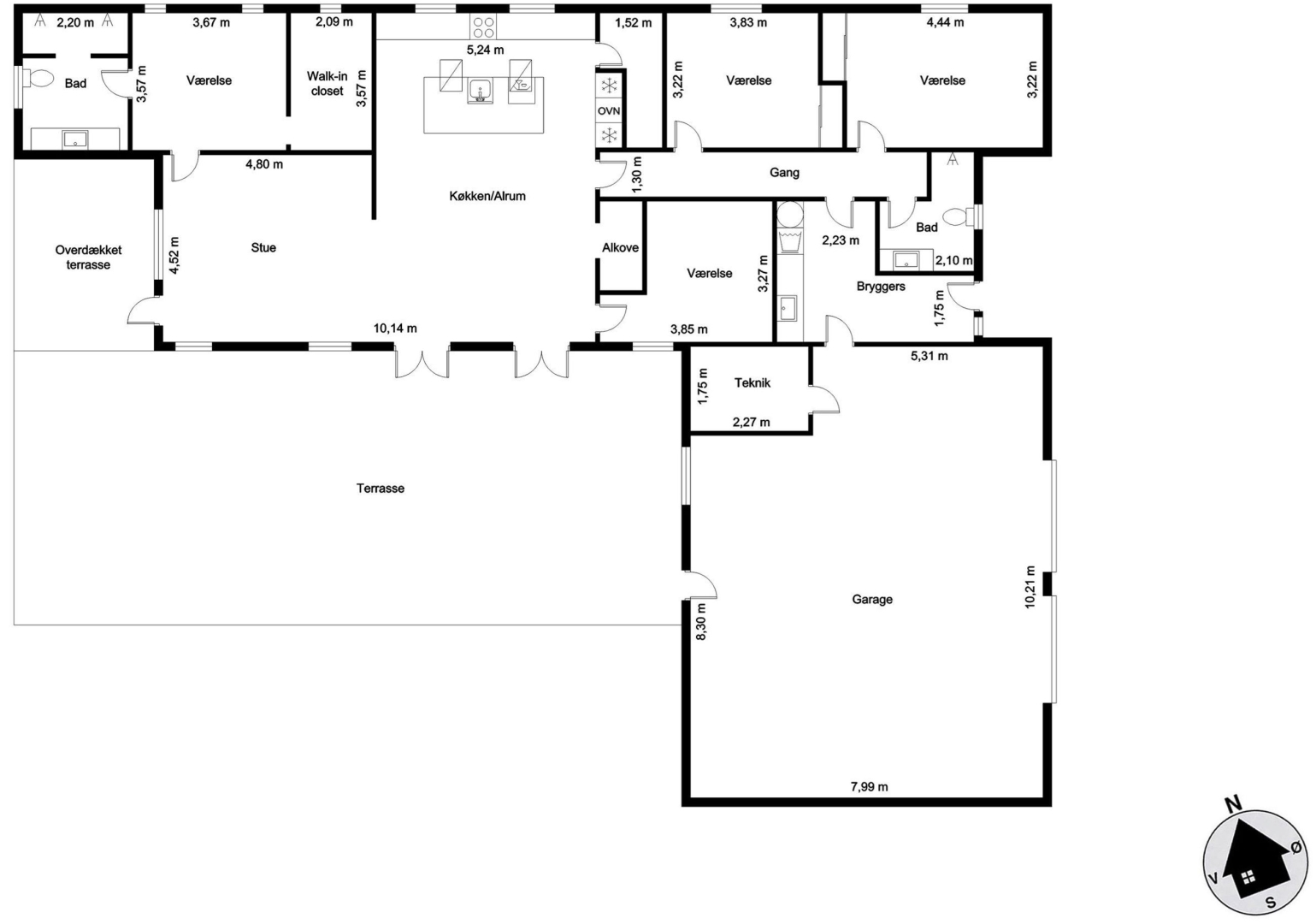
Søhusene 38 ligger i den vestlige del af Frederikshavn, omgivet af naturskønne arealer. Her kan du nyde en betagende udsigt både inde og ude mod det kuperede terræn og den markante bakkeskrænt, hvor landskabet åbner sig mod nord og nordøst i retning af det åbne land og kysten. Boligen rummer 191 m² velindrettet beboelse og en muret dobbeltgarage på 90 m² med gulvvarme, to elektriske Crawford-porte, troldtektloft og direkte udgang til terrassen.
Komforten er i top med gulvvarme i hele huset og ventilationsanlæg med varmegenvinding, som skaber et sundt og behageligt indeklima. Opvarmningen sker via varmepumpe til jordvarme, og huset er særdeles velisoleret og energimærket er således i kategori A2015 en sand energirigtig bolig, der holder driftsudgifterne på et minimum.
Materialevalget er gennemført - med troldtektlofter overalt og samme flotte vinylgulv med korkunderlag går igen i alle opholdsrum, mens bryggers og begge badeværelser er udført med ens klinkegulve.
Med murede gavle og træ/alu-vinduer fra Rationel er der udvendigt lagt vægt på minimal bygnings vedligeholdelse. Og med den 977 m² store grund primært udlagt i græs og flisebelægning kræver den heller ikke den store opmærksomhed.
Indgangen foregår via et overdækket indgangsparti med adgang til både garage og det kombinerede entré- og bryggersrum. Her er der Svane-inventar, bord med vask, klinkegulv og ergonomisk placeret vaskemaskine og tørretumbler. Fra bryggerset er der direkte adgang til den rummelige garage##
Køkken-alrummet er indrettet med et stilrent og tidløst Svanekøkken med hvide, grebsfrie låger. Bag en højskabslåge gemmer sig et praktisk viktualierum med god opbevaringsplads. En charmerende, muret alkove skaber et hyggeligt element i rummet til glæde for både børn og voksne. To dobbelte terrassedøre åbner ud til den sydvestvendte hårdttræsterrasse, hvor udsigten til naturens kuperede terræn kan nydes i fulde drag. Loftet er ført til kip, og to elektriske, appstyrede ovenlysvinduer giver et fantastisk lysindfald, særligt over køkkenøen.
Opholdsstuen har også loft til kip og direkte adgang til den overdækkede terrasse, hvor naturoplevelsen fortsætter. Forældresoveværelset rummer både walk-in-closet og eget badeværelse med bruseniche med to brusere, indmuret sæbyhylde, væghængt toilet og Svane-inventar. Derudover findes et ekstra værelse, som kan anvendes som børneværelse, kontor eller gæsteværelse.
En separat børne-/ungeafdeling byder på to værelser med skabe samt et badeværelse med bruseniche, indmuret sæbyhylde, væghængt toilet og Svane-inventar.































