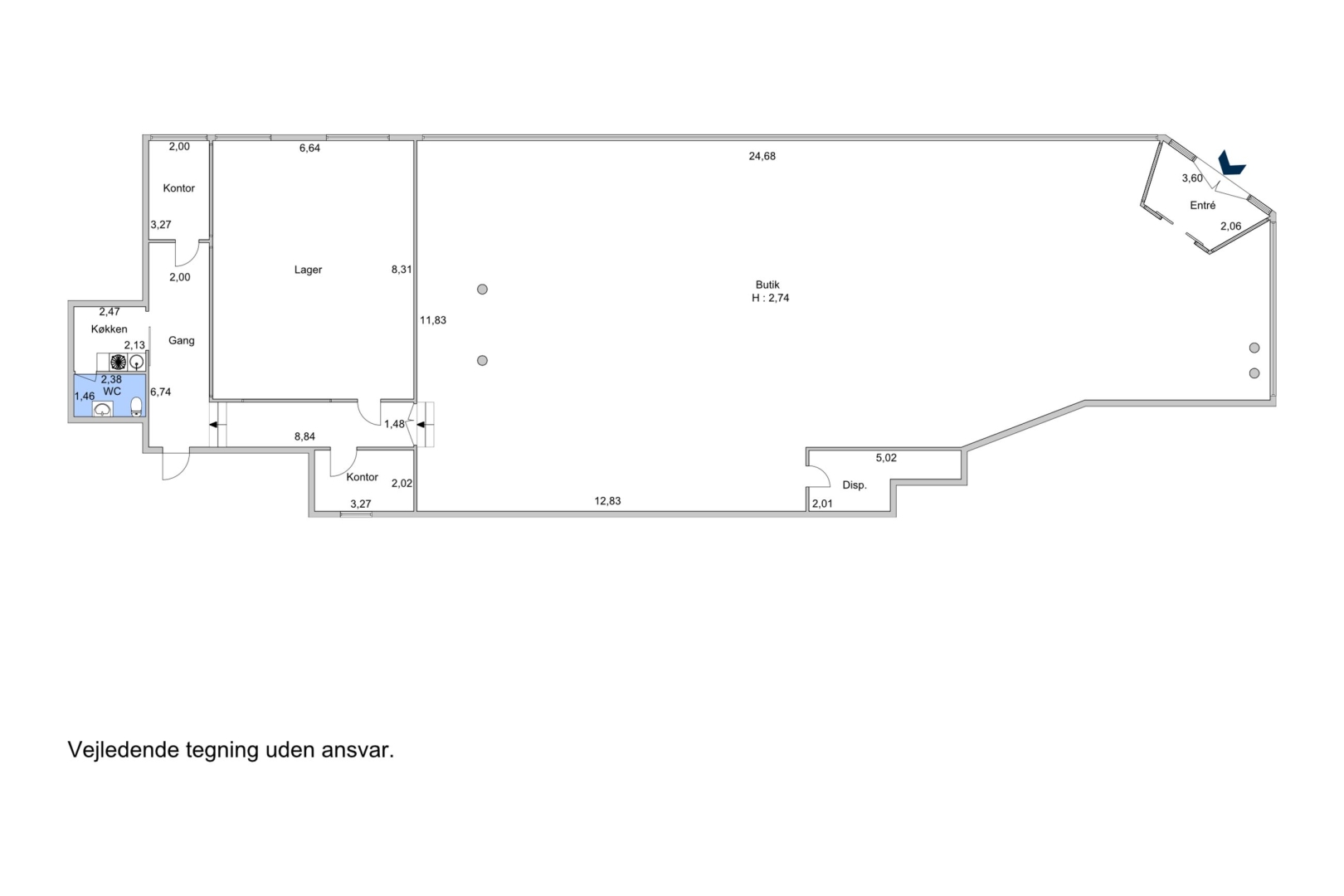
530 m2 butikslejemål beliggende i markant hjørneejendom på gågaden i Frederiskhavn.
Dette indbydende butikslokale byder på en særdeles synlig placering med direkte indgang fra gågaden og niveaufri adgang. Med en bred facade og store udstillingsvinduer er der rige muligheder for at skabe en flot præsentation af din butik.
Lokalet har en trælignende gulvbelægning over beton, en behagelig loftshøjde og en regulær grundplan, om giver optimale muligheder for indretning af en ny butik.
Fra butikslokalet er der adgang til en fordelergang, der leder til mindre kontor, lager, køkken og toilet. Disse rum er udstyret med klinker, linoleum eller tæpper samt fast grundbelysning.
Lejemålet ligger i et attraktivt område med naboer som Imerco, Telia, Skoringen og Arbejdernes Landsbank, samt kort afstand til populære butikker som Normal, Deichmann, Søstrene Grene, Synoptik, Louis Nielsen, Only og flere.
Frederikshavn er en levende by med et dynamisk erhvervsliv, der er tæt knyttet til byens havn og færgedrift. Havnen fungerer som en central katalysator for vækst og udvikling i området, hvilket har skabt et stærkt erhvervsnetværk og tiltrukket mange virksomheder. Den aktive færgedrift forbinder Frederikshavn med både Danmark og udlandet, hvilket gør byen til et vigtigt knudepunkt for handel og transport.
Frederikshavn er også kendt for sine mange oplevelser året rundt, med alt fra den ikoniske Palmestrand til et pulserende byliv og spændende shoppingmuligheder. Byen kombinerer historie og moderne kultur, hvor Tordenskiolds tid møder nutidens store events og koncerter.
Med Arena Nord og Det Musiske Hus tiltrækker byen hvert år både danske og internationale artister, og lokale bands og skuespillere optræder regelmæssigt på byens scener.
Gastronomien i Frederikshavn er i en klasse for sig. Flere af byens restauranter tilbyder innovative retter baseret på lokale råvarer, hvilket skaber en unik kulinarisk oplevelse.
Med en ca. 2 km lang gågade er Frederikshavn et sandt shoppingparadis. Her finder du alt fra specialbutikker til de nyeste trends i livsstilsbutikkerne















































