RESERVERET- Enestående udsigt, komfort og stor frihed
STOR FRIHED
- Giver mulighed for at sætte sit eget præg
Når man flytter i lejlighed, er det ofte lig med standardvalg og praktiske materiale løsninger. På Værkergrunden i Frederikshavn er der tænkt i nye baner, hvilket gør, at boligkøberne selv kan få lov til at sætte deres helt eget personlige præg på deres kommende hjem.
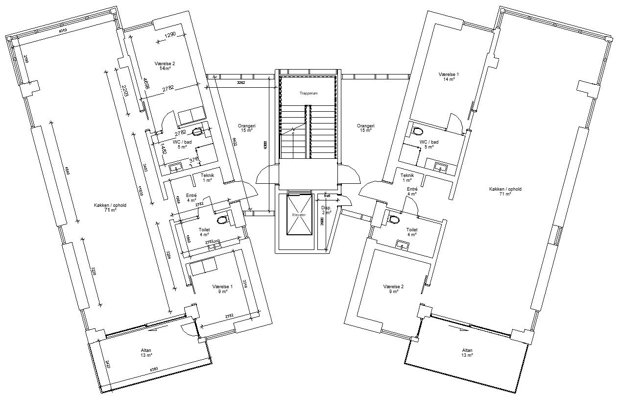
På Værkergrunden er der sørget for de bedste rammer, hvor alt er klappet og klargjort for den enkelte boligkøber. Med tanken om at køberne selv skal kunne skabe og tilrettelægge sit eget hjem, er der åbnet op for muligheden for selv at kunne tage stilling til indretning og materialevalg. Derfor kan du selv bestemme placering og indretning af køkken, indretning af bad/toilet samt soveværelse og om de ekstra gangarealer skal udnyttes til opbevaring eller et lækkert lille orangeri.
Materialevalget er også helt op til dig. Skal der flotte lyse trægulve på som kan reflektere sollyset, eller er du mere til de bløde og lækre gulvtæpper som pryder i modemagasinerne netop lige nu?
De eksklusive lejligheder er beliggende centralt i Frederikshavn, med en fantastisk panoramaudsigt over vandet, havnen og byen.
For os er det vigtigt at boligkøberne føler sig hjemme. Derfor får de muligheden for selv at indrette lejlighederne helt efter egen smag og personlige ønsker.
KOMFORT
- Hverdagen skal være ubesværet
Der er tænkt på alle detaljer i de 10-etagers høje bygninger på Værkergrunden. Det skal være nemt og komfortabelt at bo i lejlighederne. Her skal der leves og nydes.
Hvem elsker ikke en hyggelig tur i biografen? Med en topmoderne biograf som udgør stueplanen samt første sal i det nordlige tårn, er der ingen undskyldning for en god filmoplevelse.
Under det sydlige tårn er der en god, rummelig parkeringskælder hvortil adgangen sker fra niveauplan. Samtidig er der masser af gæsteparkering på udearealerne omkring bygningerne.
Som beboer på Værkergrunden er der rig mulighed for at fejre enhver lejlighed.
Fælleshuset kan rumme op til 50 personer, hertil er der selvfølgelig også både køkken og toilet. Desuden er der 3 flotte hotelværelser i tilknytning til fælleshuset, der gør det nemt at have besøg langvejs fra.
ENESTÅENDE UDSIGT
- Bo i centrum med udsigt til alle verdenshjørner
Den høje beliggenhed giver en fantastisk udsigt over byen. Dette siger lidt om de velindrettede lejligheder, hvor både udsigt og lysindfald spiller en afgørende rolle for den unikke oplevelse.
På Værkergrunden finder man byens bedste udsigt, fordelt på to dobbelttårne, der smyger sig op i en 10-etagers højde. Her vælter lyset ind fra alle sider, selv på den mest triste efterårsdag.
Man kan i ro og mag nyde sin morgenkaffe i det lysindfald, der vælter ind, når solen står op, hvilket danner et nyt maleri for hver dag der går.
OPLEV LEJLIGHEDERNE
Lejlighederne står klar til overtagelse allerede nu. Værkergrunden tilbyder privat rundvisning til de interesserede, så man i ro og fred kan danne sig et indtryk af lejlighedens mange muligheder.
Alle installationer er forberedte til forskellige opstillingsmuligheder af køkken og garderober. Køkken kan placeres mod vest eller øst alt efter indretningsønsker. Køber skal selv leverer, montere og betale for alt det ønskede inventar til køkken, bad og garderobe ligesom alle hvidevare, sanitet, gulvbelægning leveres, monteres og betales af køber (alt er udenfor ejerlejlighedens kontantpris).
Der medfølger en indendørs p-plads til 23 af lejligheder og for de resterende 9 lejligheders vedkommende en garage med depotrum. Ekstra parkering i den lukkede parkeringsgård kan tilkøbes. Der findes yderligere udendørs p-pladser på det fælles parkeringsareal.
Kontakt Ejendomsmæglerfirmaet Calundan på 9843 4300













































