Firelænget landejendom med 3,5 ha. jord.
Ejendommen er frit og ugeneret beliggende ved enden af lukket vej, i naturskønt område nær Lyngby Strand og Kajholm Plantage. 7 km og 10 km til henholdsvis Lønstrup og Løkken, som begge er kendte feriebyer.
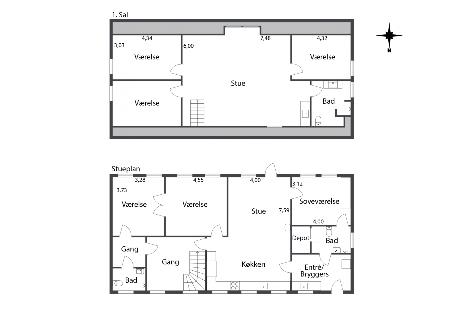
Fritliggende bolig i 2 plan indrettet med i stueplan entré/bryggers, stort køkken/alrum med brændeovn og udgang til sydvendt have, soveværelse, 2 værelser, 2 badeværelser, hall med god trappeopgang til 1. sal med hyggelig opholdsstue med loft til kip og stort vinduesparti mod syd, 3 værelser og badeværelse med bruseniche.
693 m² driftsbygninger fordelt med tidligere staldbygninger og en regulær ladebygning på 295 m². Bygningerne vil være velegnet til flere formål indenfor dyrehold, hobbies m.m.
Skøn lukket gårdsplads og stor lukket sydvendt have.
Ejendommens areal på 3,5 ha. er regulær markjord som er beliggende ved ejendommen. Arealet er EU-berettiget



























