Østergaard en harmonisk spændende firelænget landejendom
Ejendommen er velbeliggende i frie omgivelser med 200 m privat vej ud til Skallerupvej. 2,7 km til Skallerup friskole fra vuggestue - 9 årgang og idrætsfaciliteter, 6 km til henholdsvis Lønstrup og Hjørring. Gode busforbindelser mellem Hjørring og Lønstrup.
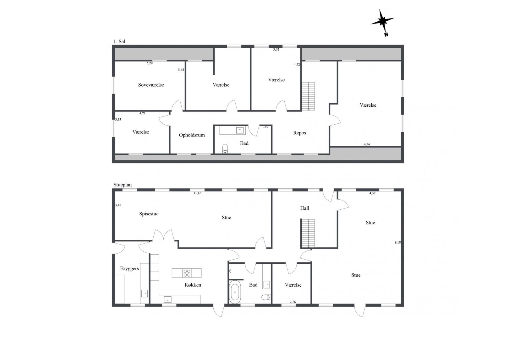
Fra den private vej kommer man ind på gårdspladsen gennem en større vognport og møder her det præsentable fritliggende velholdte stuehus på hele 311 m², som er indrettet med hall med trappeopgang til 1. sal, køkken med god spiseplads og fransk dobbelt dør til spise- og opholdsstue med brændeovn, stor opholdsstue, badeværelse med kar og bruseniche, værelse og bryggers med pænt skabsarrangement. 1. sal med større repos, soveværelse, 4 værelser og badeværelse med brusekabine.
2431 m² utrolig velholdte og gode driftsbygninger bestående af tidligere svinestalde, ladebygninger, stort rummeligt maskinhus med stålbuer. Et stort bygningssæt der vil være anvendelig til utrolig mange formål, bl.a dyrehold, selvstændigt erhverv der kræver plads, m.m.
Ejendommens jordareal på 4,2 ha. er med gårdsplads og stor velanlagt have, resterende areal er på tiden forpagtet ud, og er EU-berettiget.
Alt i alt et dejligt og velholdt sted med rigtig mange muligheder der skal ses og opleves.














































