Velindrettet og vedligeholdelsesvenlig bolig nær strand, by og historie
Denne skønne bolig fra 2005 er beliggende under 100 meter fra den historiske Nordre Skanse Fladstrands første fæstningsanlæg og i kort gåafstand til den populære Palmestrand. Samtidig er der kun fem minutters kørsel til centrum og gode indkøbsmuligheder.
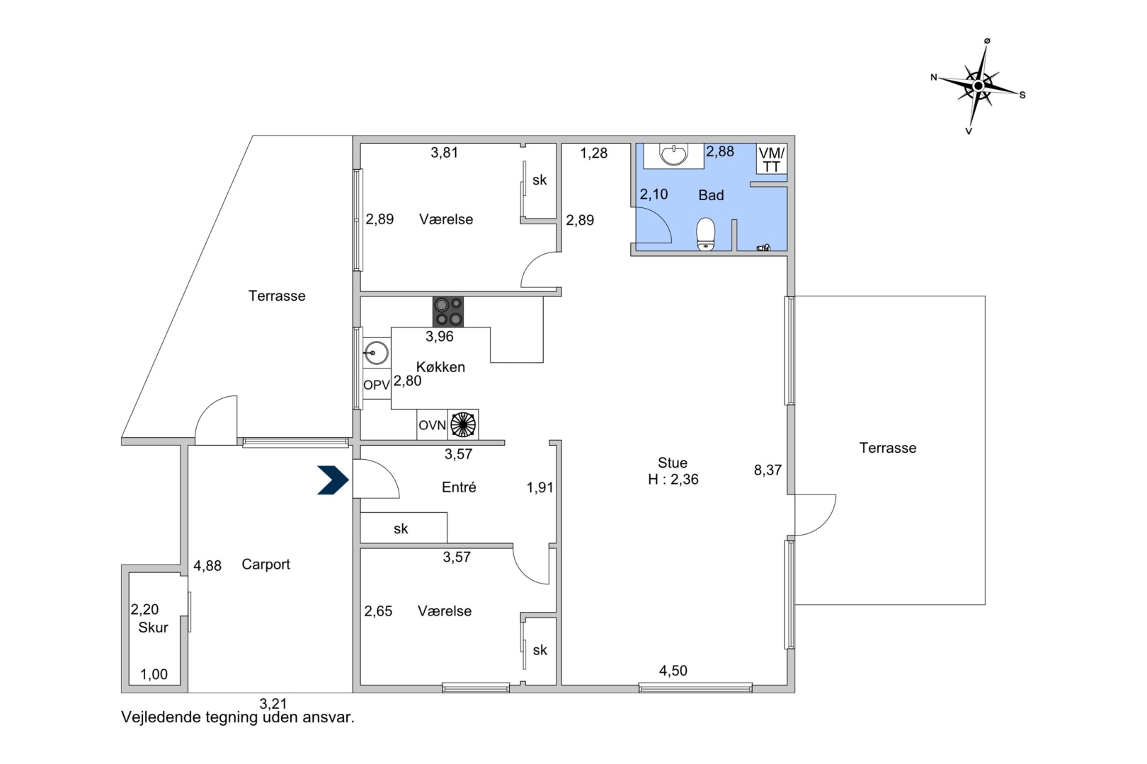
Boligen har et veludnyttet boligareal på 100 kvadratmeter og en carportbygning med tegltag på 21 kvadratmeter, hvoraf 3 kvadratmeter udgør et praktisk, integreret udhus.
Ejendommen fremstår både solid og vedligeholdelsesvenlig med murede gavle og uden udhæng og med de store træ/aluvinduer fra 2021 i stuen, hvilket minimerer behovet for udvendig vedligeholdelse. Det klassiske røde tegltag bidrager til et charmerende og tidløst udtryk.
Grunden er overskuelig med sine 273 kvadratmeter, og haven kræver derfor kun et minimum af arbejde. I stedet kan I nyde udelivet på den sydvendte, ugenerede fliseterrasse eller slappe af i skyggen på den træbelagte terrasse mod nord.
Indvendigt byder boligen på en praktisk entré med adgang direkte fra carporten. Her er der indbyggede skabe, epoxybelægning og spots i loftet. Et lyst børneværelse med skydedørsskabe og trægulv. Designa køkkenet er fra 2020 og fremstår moderne med epoxy gulv og åben forbindelse til opholdsstuen. I stuen er der trægulv, god plads til spisebordet og direkte udgang til den sydvendte terrasse. Soveværelset har ligeledes skydedørsskabe og trægulv, og badeværelset er indrettet med bruseniche, klinkegulv med gulvvarme samt plads til vaskesøjle.
Her får I en veldisponeret og indflytningsklar bolig, som passer perfekt til jer, der ønsker at downsize uden at gå på kompromis med komfort og beliggenhed eller som søger et attraktivt alternativ til en lejlighed.























