menu

Kombineret bolig og erhvervsejendom beliggende i fuldt udbygget bolig og erhvervsområde i Frederikshavn Vestby

Beliggende i et af de få attraktive områder i Frederikshavn, hvor bolig og erhverv kan kombineres.

Ejendommen, opført i røde mursten med eternittag og termoruder, består af både en bolig- og erhvervsdel.

Ejendommen består af en boligdel som indeholder - vindfang - forstue - stort spisekøkken/køkkenalrum med kogeø og god spiseplads - dobbelt dør til opholdsstue - soveværelse - badeværelse med bruseniche - bryggers -
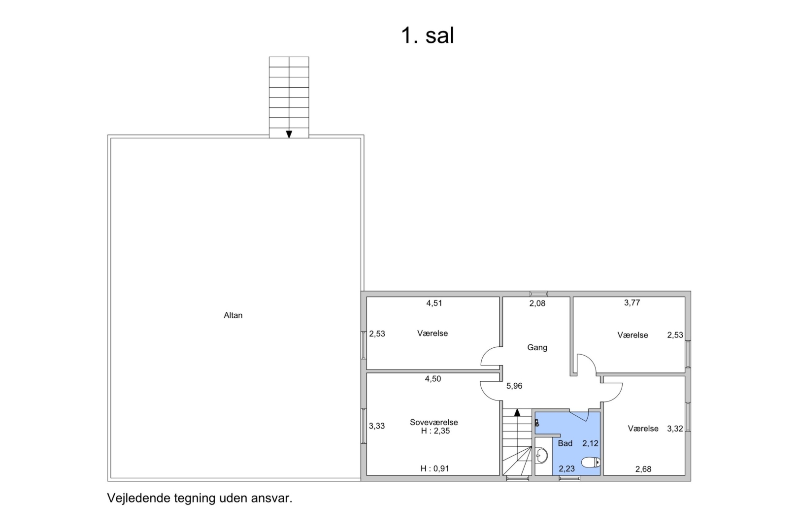
fra mellemgang er der trappe til overetagen som indeholder - forstue - 2 store gavl værelser - badeværelse med bruser - stor tagterrasse

Fra bryggerset er der adgang til værkstedsdelen, som er opdelt i to rum: et opvarmet værksted og et uopvarmet lager. Begge rum har porte. Derudover er der carport og flere disponible bygninger med træbeklædning.

Ejendommen ligger på en 2650 m² stor grund og sælges som dødsbo.

Med gode tilkørselsforhold, kun 100 meter fra omfartsvejen Suderbovej, der forbinder Brønderslevvej og Hjørringvej, er dette en ideel ejendom til eksempelvis tømrerværksted, elektrikerfirma, smedeværksted, malerværksted eller andre erhverv i tilknytning til boligen.

Denne ejendom byder på unikke muligheder for at kombinere bolig og erhverv i et attraktivt område.

Lidt om Frederikshavn.........

Frederikshavn er den lille storby med de mange oplevelser - året rundt!

Byen med Palmestrand, byliv og shopping.

Byen med oplevelses tilbud for en hver smag.

Byen hvor Tordenskjold og andet godtfolk anno 1717 mødes.

Byen med de store events, de mange koncerter, de mange forskellige overnatnings tilbud og de attraktive
restauranter.

I Frederikshavn tilbydes du shopping i et internationalt miljø, mulighed for overnatning, et aktivt udeliv i den
skønne natur, der spænder fra attraktive strande mod nord til skovens dybe stille ro ved Bangsbo i syd.

Byen tiltrækker med Arena Nord og Det Musiske Hus hvert år store uden- og indenlandske artister, ligesom
lokale bands og skuespillere udfolder sig på de mange scener.

Gastronomien i Frederikshavn er et kapitel for sig. Du har mulighed for at nyde gastronomi i høj klasse på
flere af byens innovative og traditionsrige restauranter, hvor de lokale råvarer forkæles til glæde for
gæsterne.

2 km gågade ... det er ikke en drøm, men virkeligheden i Frederikshavn.
Butikkerne bugner af gode tilbud. Bliv fristet i special butikkerne eller find lækkert nyt i de mange
livstilsbutikker.

Jens Jørgen Calundan
Kontakt:
Jens Jørgen Calundan

H.C. Ørsteds Vej 31, Frederikshavn
Sag: 190424-1

Kontantpris 1.595.000
Ejerudgifter pr. mdr1.888
Boligareal m2167
Erhvervsareal m2213
Bebygget areal m2 319
Grundareal m2 2650
Etager1
Byggeår1980
Ombygget1987
Energiklasse

Standard finansiering
Udbetaling1.595.000
Ejerudgifter pr. mdr1.888


Vis salgsopstilling
/

Vis salgsopstilling


Når du bestiller salgsmateriale, godkender du at vi gemmer de indtastede personoplysninger og at vi må kontakte dig telefonisk eller via e-mail vedrørende ejendommen. Du kan se vores persondatapolitik her!

Navn:

Telefon:

E-mail:

 Jeg ønsker salgsopstillingen sendt via post

 Ja, Ejendomsmæglerfirmaet Calundan må kontakte mig via telefon eller mail vedr. denne og lignende boliger

Book fremvisning

Book en fremvisning

H.C. Ørsteds Vej 31, Frederikshavn - 190424-1

Når du bestiller en fremvisning, godkender du at vi gemmer de indtastede personoplysninger og at vi må kontakte dig telefonisk eller via e-mail med henblik på fremvisning af ejendommen. Du kan se vores persondatapolitik her!

Dine oplysninger

Ønsket tidspunkt

Kontakt en af vores finansielle partnereFå en gratis salgsvurdering
boliger i samme prisniveau
Østergade 16
Sindal
Kontantpris1.475.000
Boligareal m2188
Nørregade 12A
Sindal
Kontantpris1.350.000
Boligareal m2184
Fabriksvej 5, Gærum
Frederikshavn
Kontantpris1.400.000
Boligareal m2170