Ejerlejlighed midt i Ålbæk
På Centralvej i Ålbæk finder I denne ejerlejlighed i to plan, som er delvist renoveret. Her er der rig mulighed for at sætte sit eget præg på lejligheden, da der endnu ikke er opsat køkken.
Lejligheden er beliggende med alt indenfor rækkevidde: stationen, skole, børnehave, idrætscenter, butikker samt naturen. Desuden har Ålbæk et rigt foreningsliv både sportsligt og kulturelt, og på den idylliske havn i Ålbæk er der stadig fiskeri og sejlerklub. Ålbæk er omgivet af skøn natur og gode cykelruter, ridestier og vandreruter.
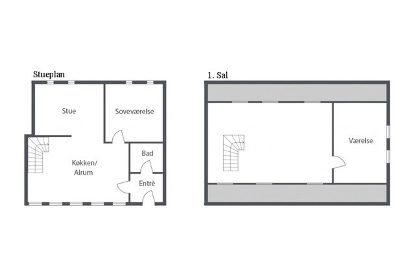
Ejerlejligheden er 139 m² stor og fordelt med 85 m² i stueplan og 54 m² på 1. sal. Ejerlejligheden er indrettet med: Entré med klinkegulv Badeværelse med bruseniche Stort rum med plads til køkken/alrum og med trappe til 1. sal Stue - Soveværelse.
1. sal er indrettet med stue med synlige bjælker samt 1 værelse.
Denne ejerlejlighed er godt indrettet og udvendigt er der 2 parkeringspladser samt en plads til havemøbler.
Det manglende køkken er til forhandling.

















