1.674 m2 moderne administration, lager og produktionsbygning beliggende i Sæby Syd
Denne administrations-, lager- og produktionsejendom i fremragende stand er en enestående investeringsmulighed med et attraktivt afkast på ca. 7,6%. Ejendommen, der kun har få år på bagen, er udlejet til det velrenommerede firma DMT Online A/S på en 5-årig uopsigelig lejekontrakt, hvilket sikrer en stabil og pålidelig indtægtskilde.
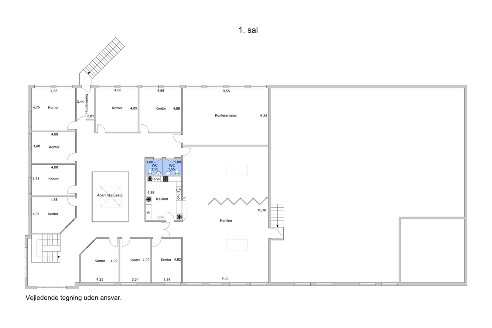
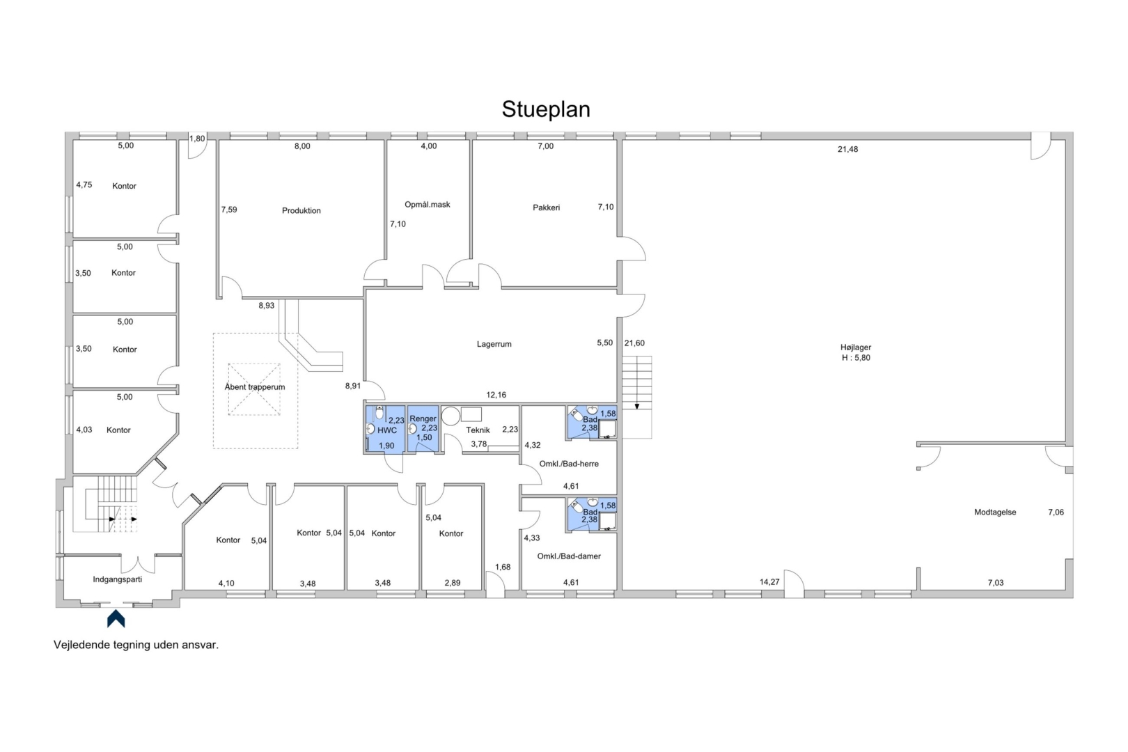
Opført i robuste materialer som sandwichbetonelementer med frilagte overflader og termoruder i plastrammer, tilbyder ejendommen en kombination af kvalitet og holdbarhed. Med en fuld stueetage på 1.092 m2 og en overetage på ca. 582 m², er ejendommen ideelt indrettet til at imødekomme en bred vifte af erhvervsaktiviteter.
Ejendommen byder på en imponerende og funktionel indretning med en stor, åben reception, velindrettede kontorer, montageafdeling, klargøringsområde, omklædningsfacilliteter, teknikrum, badefaciliteter samt et rummeligt lager med 6 meters frihøjde og effektiv vare ind- og udlevering.
Overetagen rummer yderligere kontorer, et stort mødelokale, og en kantine med tilhørende køkken. Den elegante balkon med udsigt til stueetagen og det unikke lysindfald fra specialdesignede vinduer bidrager til et inspirerende arbejdsmiljø.
Med jordvarme/varmepumpe som opvarmningskilde holdes driftsomkostningerne på et minimum. Udenfor er der asfalterede køre- og parkeringsarealer samt en ekstra grund, der muliggør fremtidige udvidelser.
Ejendommen er strategisk placeret i den sydlige del af Sæby, kun få hundrede meter fra tilkørsel til E45, hvilket gør den let tilgængelig og attraktiv for lejere. Med et solidt lejemål og et godt afkast er denne ejendom et sikkert valg for investorer, der ønsker en stabil og lønsom investering.





























