Frederikshavn Havn
Erhvervsbygning i et plan beliggende kajnært ud for de gamle hyttefade på Frederikshavn Havn.
Calundan Erhverv tilbyder nu denne velholdte ejendom på Fiskerihavnsgade til salg. Ejendommen er beliggende på en lejet grund på Frederikshavn Havn, med direkte udsigt til havnebassinet.
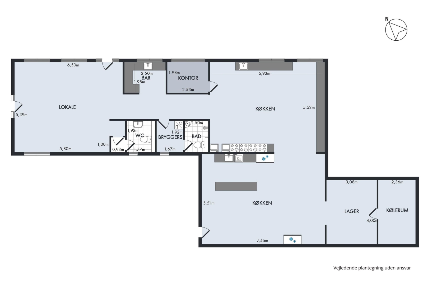
Bygningen er ideel til en bred vifte af virksomheder, der ønsker en placering på havnen i Frederikshavn. Den egner sig både til lager, logistik, administration og mindre produktion eller værksted. Bygningen blev oprindeligt opført i 1968, men har gennemgået en grundig renovering i de seneste år. Der er blandt andet lagt klinkegulve med gulvafløb og fliser på de fleste vægge, hvilket giver bygningen et funktionelt og præsentabelt udtryk. Ejendommens samlede areal er 213 kvadratmeter og indeholder et stort åbent lokale med receptionsdisk, 2 toiletter med forrum, et stort produktionslokale, kontor samt et kølerum. Ejendommen bruges i øjeblikket til cateringvirksomhed, men den rummelige indretning giver mulighed for mange forskellige anvendelser. Der er fast grundbelysning i bygningen-
Opvarmning sker via elvarme og varmepumpe, hvilket sikrer en økonomisk og effektiv opvarmning af bygningen.
Grunden, der er lejet er på 374 m2






















