Meget velholdt landejendom med flot energimærke og med 5,3 ha. jord.
Skønt beliggende i naturskønne omgivelser og med kort afstand til Lendum med indkøbsmuligheder, skole med børnepasningsordning. 11 km til Sindal, 19 km til henholdsvis Hjørring og Frederikshavn.
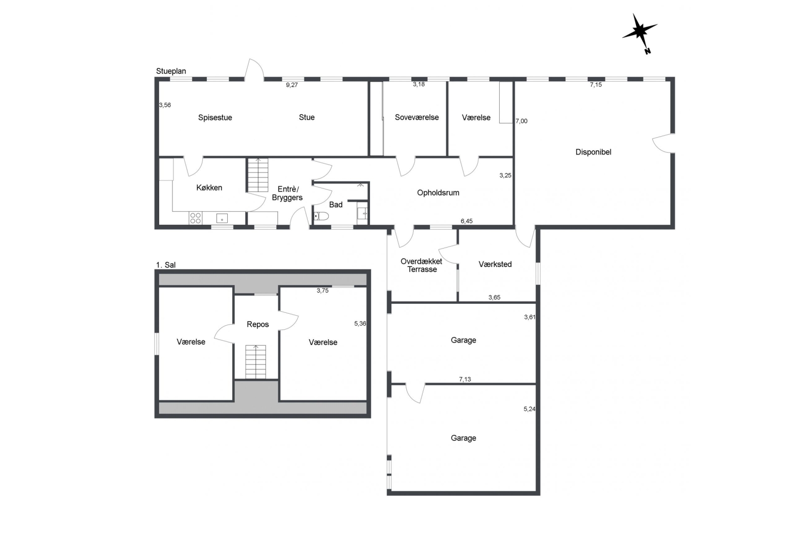
Boligen der er velindrettet med entré/bryggers med bordarrangement og plads til vaskemaskine og tørretumbler, pænt lyst køkken med god spiseplads, hyggelig spise- og opholdsstue med udgang til sydvendt have, lyst badeværelse med bruseniche, stort aktivitetsværelse, soveværelse og værelse. God trappeopgang fra entré til 1. sal med repos og 2 gode store værelser med loft til kip.
66 m² medbygget bygning der vil være anvendelig til flere formål. 96 m² medbygget bygning med værksted og 2 garager med hejseporte.
Der er på ejendommen et flot energimærke, opvarming med jordvarmeanlæg og med 6 kWh solcelleanlæg.
Fra offentlig vej fører der en hyggelig alle ind til ejendommen med dejlig gårdsplads. Stor velanlagt ugeneret have med drivhus, græsplæne, mange forskelligartede buske og træer.
Hele ejendommens jordtilliggende er samlet ved bygningerme og er randbeplantet. Yderst på matriklen er der en stor flot sø. Ejendommens markareal er EU-berettiget og på tiden bortforpagtet.
Alt i alt en ejendom der skal ses og opleves.






























