Ekstraordinær loftshøjde - ideelt til større produktion
Højloftet produktionslokale med attraktiv placering på Frederikshavn Havn
Lager & Produktion til Leje
Ekstraordinær Loftshøjde Ideelt til Større Produktion
Dette unikke produktionslejemål, beliggende nær kajkanten på Frederikshavn Havn, udlejes nu. Med sin maritime placering og exceptionelle faciliteter er denne bygning ideel til virksomheder med behov for en stor og fleksibel produktionshal.
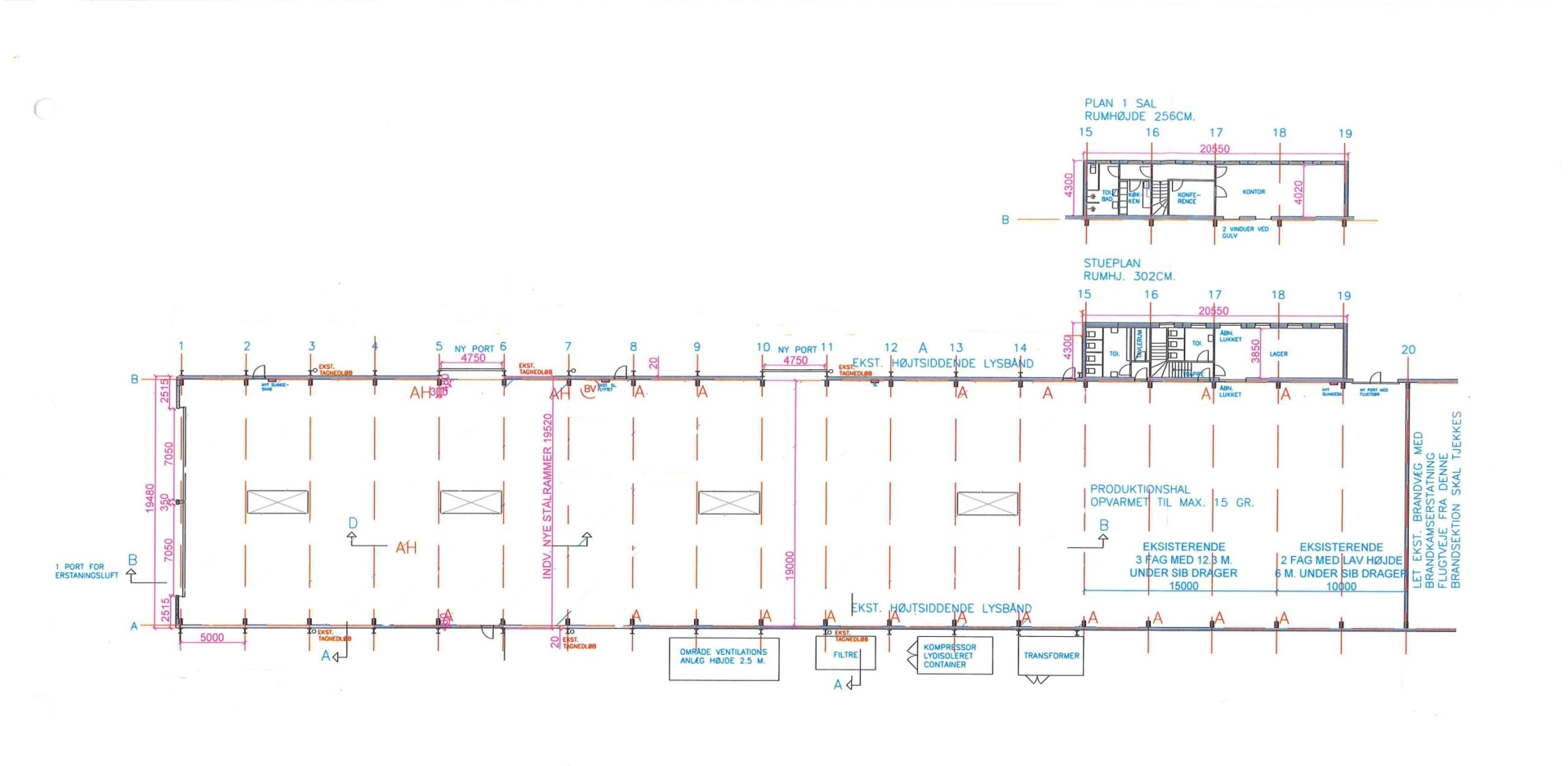
Lejemålet dækker et samlet areal på 2.035 m², som er fordelt på 1.902 m² lys og rummelig produktionsbygning samt 133 m² personaleafdeling. Bygningen er særligt attraktiv for virksomheder, der arbejder med større enheder, takket være den ekstraordinære loftshøjde på mellem 6 og 16 meter, samt den søjlefri konstruktion, der giver stor fleksibilitet i brugen af hallen.
Produktionsfaciliteter:
Produktionshallen er indrettet med moderne faciliteter, der understøtter tunge og krævende produktioner. Den rummer 8 traverskraner med kapacitet fra 5 til 16 ton, samt 4 aluporte, der sikrer nem adgang til og fra bygningen:
·2 porte i gavlen med en bredde på 7 meter og en højde på 8 meter.
·1 port i siden med en bredde på 4,7 meter og en højde på 9 meter.
·1 mindre port med en bredde på 3,9 meter og en højde på 3,2 meter.
Hallen er også udstyret med et effektivt udsugningsanlæg med flere punktudsugninger, store ovenlysvinduer for et optimalt lysindfald, og LED grundbelysning. Fra produktionshallen er der direkte adgang til et reservedelslager, som er praktisk for hurtigt at kunne tilgå nødvendige materialer.
Personaleafdeling:
Personaleafdelingen er indrettet i stueplan med to gode omklædningsrum med brusere og toiletter. På første sal findes der et toilet med bruser, køkken, personalerum samt et lys og indbydende kontorlokale, der tilbyder et behageligt arbejdsmiljø.
Tilfart og Infrastruktur:
Lejemålet har fremragende tilkørselsforhold, hvilket giver nem adgang til E45 og det øvrige vejnet. Derudover ligger det tæt på både regionaltog (1,5 km) og et busstoppested (1,3 km), hvilket gør det nemt for både medarbejdere og transport at komme til og fra lokationen.
Afstanden til Aalborg Lufthavn er ca. 66 km, hvilket også er en fordel for virksomheder, der har behov for international forbindelse.
Bygningens ideelle anvendelse:
Den søjlefri produktionshal er cirka 95 meter lang og 20 meter bred, hvilket gør den ideel til produktion af store enheder og tunge industriprodukter. Denne størrelse og fleksibilitet kombineret med de høje lofter giver en unik mulighed for specialiseret produktion.
Frederikshavn Kommune:
Frederikshavn er en vigtig havneby i Nordjylland, der har en lang tradition for fiskeri, skibsbygning og maritime erhverv. I dag er Frederikshavn også kendt som en central færgehavn med daglige forbindelser til både Læsø og Göteborg, hvilket understøtter byens betydning som en vigtig logistikhub i regionen.
Byen har ca. 22.800 indbyggere og ligger ved den østlige kyst ud til Kattegat, hvilket gør den til et attraktivt område for både erhvervsliv og turisme. Frederikshavn er desuden hjemsted for flere maritime uddannelser og tekniske skoler, som understøtter den lokale industri.
Infrastruktur og Afstande:
·Aalborg Lufthavn: 66 km
·Motorvejsnettet (E45): 8,5 km
·Regionaltog: 1,5 km
·Busstoppested: 1,3 km
·Indkøbsmuligheder: 1,4 km

























